觸摸屏標準拍擊檢驗篩
拍 擊 篩

一、用途:
RCZ新型擺動拍擊篩分機是一款高精度篩分機械,廣泛應用于化工、食品、醫藥、礦山、高校、工廠等試驗室用于各種物料的篩分設備。
二、結構原理:
1、本機利用電機平布帶輪帶動偏心擺動機構,帶動篩框作有規律的橢圓形軌跡轉動,可以根據物料分級要求,篩框可以1-8層任意選裝。
上部通過螺旋斜面軸承頂桿機構,帶動拍擊臂進行規律拍打,使難以篩分的物料在擺動和拍擊振動下順利分離。使篩分效率和篩分精度顯著提高。
2、本機采用電子數控操作面板,數顯定時,可準確方便調整每次篩分時間,并記錄每次拍擊次數及每次的搖擺次數。
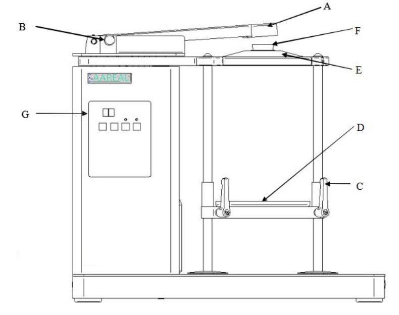
前視圖

序號 | 名稱 | 功能 |
A | 拍擊臂 | 上下拍擊敲打振動篩框 |
B | 拍擊定位銷 | 開啟或關閉拍擊功能 |
C | 鎖緊手柄 | 底框托架鎖緊機構 |
D | 下托盤 | 安裝定位篩框 |
E | 上壓蓋 | 固定篩框上部 |
F | 聚氨酯砧座 | 將拍擊振動傳遞給篩框 |
G | 操作面板 | 用于調整確定工作狀態和時間 |
各部位功能表介紹
1、顯示操作面板 按下電源啟動,觸屏顯示屏亮屏

2、時間調整 增加/減少時間 顯示屏顯示增減時間范圍為0-99分鐘

操作方法:按下綠色啟動按鈕開,設備開始運行。
按紅色按鈕關,設備停止運行,顯示本次拍擊次數和本次搖擺次數。
從新按下綠色按鈕,設備從新繼續運行,拍擊和搖擺次數歸零重新計數。
每次可重新觸屏輸入時間。
3、篩框的安裝:
本機采用GB/T6003.1-1997標準篩框¢200×50
1、安裝篩框時,先把立柱下部篩框底部托架緊定把手螺釘松開,并將托架向下推。
2、把所需篩框放置到底部托架上,蓋好頂蓋,將托架向上推進,直到上部定位部充分到位,然后把緊定把手鎖緊。


4、篩框取出:
1、先把拍擊臂提起。
2、把立柱底框托架緊定把手松開,向下推開,取去篩框。

5、關閉拍擊臂
B處是一偏心鎖定銷,先把鎖定銷向外拔出,抬起拍擊臂A,轉動鎖定銷把拍擊臂抬高鎖定,即可停止拍打功能。
三、日常維護:
為保持設備良好狀況,請注意日常維護和保養。
不要用自來水直接沖洗整機
內有高壓電器謹防觸電
清潔 只能使用布蘸水。禁止使用溶劑。
1)、應保持設備清潔,篩網每次用后要及時用毛刷清掃干凈,對較
難清理的篩網物料,建議采用超聲波浴清理。
2)、對拍擊臂、轉動螺旋頂桿機構要定期加注輕質潤滑油。
3)、設備停止運轉后,人員離開要及時斷開電源、
4)、插拔電源要捏緊插頭,不準扯拉電線。
四、包裝和運輸:
本設備運輸包裝適用于GB機械設備通用運輸包裝技術規范。
如果因包裝運輸不當,造成設備損傷,影響使用,應根據責任進行索賠。
運輸:
運輸吊裝應按下面圖示,用4個專用M20×150的螺栓緊固到底座上進行吊裝。凈重量:約為75公斤。

吊裝位置圖
運輸中不允許倒置、側放 運輸過程中不允許堆壓、投擲
溫度的變化
如果溫度變化很高(例如在運輸過程中),防止凝結水。否則電子元件會損壞。
五、設備的安裝:
安裝地點的參數:環境溫度:5°到40°C 海拔高度低于3000M 能達到相對濕度為80%
如果環境溫度低于或超過這些值,電氣和機械部件會損壞,性能數據被改變到一個未知的程度。
1、設備應安裝于適當高度的工作臺面上,校正好水平位置,不得傾斜,4個支腳要平穩接觸臺面,不得有振動。
2、電源插座必須與本機匹配,設備需可靠接地接零。
六、技術參數:
1、本機是斷續運行,8小時的單班操作實驗室設備。
2、本機篩框選配GB/T6003.1-1979標準篩框。
3、電機功率:0.55Kw
4、旋轉次數:310±6次/Min
5、拍擊次數:170±3/次
6、拍擊高度38±6毫米
7、旋轉行程:16毫米
8、配用電源:電壓220V 頻率50赫茲

























